Obiekt na wynajem Jelenia Góra, Centrum

460.00 m²
47,83 zł/m2
T4H-BW-307

22 000 zł

Obiekt na wynajem
Oferta na wyłączność

Szczegóły oferty

Symbol oferty T4H-BW-307
Powierzchnia 460,00 m²
Rodzaj obiektu kamienica
Opłaty w czynszu -
Opłaty wg liczników Woda zimna, Woda ciepła, prąd, gaz, CO
Gaz jest
Woda ciepła - miejska
Dojazd ASFALTOWA
Otoczenie centrum miasta
Ogrzewanie C.O. Z SIECI MIEJSKIEJ
Możliwość parkowania w pobliżu
Wejście od ulicy
Prąd jest
Kanalizacja miejska
Wojciech Perkowski

Wojciech Perkowski

Właściciel

Napisz wiadomość 70 Ofert

Opis nieruchomości

Tylko u nas – nie szukaj dalej!
Prezentacje wyłącznie po wcześniejszym umówieniu za pośrednictwem naszego biura.


Biuro Nieruchomości Team4home prezentuje DO WYNAJĘCIA W CAŁOŚCI kamienicę usługowo-mieszkalną o powierzchni ok. 460 m², położoną w samym centrum miasta – przy głównym deptaku prowadzącym bezpośrednio na plac Ratuszowy.

Obiekt świetnie sprawdzi się jako jedno lub piętrowa restauracja z częścią socjalną oraz noclegową dla pracowników. Nadaje się również jako miejsce pod gabinety lekarskie czy inne działalności o charakterze biurowym oraz usługowym. 

Nieruchomość była regularnie doinwestowywana i utrzymywana w dobrym stanie technicznym
W galerii znajdą Państwo roboczą propozycję adaptacji kamienicy na 5 lokali mieszkalnych, wykonaną przez architekta. Koncepcja nie uwzględnia jedynie lokalu usługowego na parterze (jest to dodatkowa powierzchnia będąca również przedmiotem sprzedaży). 

Najważniejsze informacje:

  • Ogrzewanie z sieci miejskiej
  • Dach: dachówka, papa oraz blacha po obróbce.
  • Działka gruntu w użytkowaniu wieczystym na okres 99 lat od daty zawarcia umowy; budynek stanowi odrębną nieruchomość
  • Gaz doprowadzony do budynku
  • Na każdym poziomie osobne podliczniki na wodę i ogrzewanie
  • Osobne liczniki prądu.
  • Możliwość sprzedania bez lokalu usługowego.
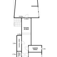
Rozkład nieruchomości (zachęcamy do zapoznania się z poglądowym rzutem budynku znajdującym się w galerii):
Parter:
  • Lokal handlowy („witryna”) o pow. ok. 100 m² z osobnym wejściem oraz dodatkową pow. w postaci piwnicy.
  • Dodatkowe wejście do części usługowo-mieszkalnej.
I piętro (łączna pow. 125,3 m²):
  • 6 pomieszczeń o pow. od 6,24 m² do 31,16 m²
  • WC (3,8 m²)
II piętro (łączna pow. 55,5 m²):
  • 2 pomieszczenia (13,77 m² i 18,76 m²)
  • WC (3,8 m²) i łazienka (4,56 m²)
  • Korytarz (3,8 m²)
Dodatkowa część II piętra z osobną komunikacją (łączna pow. 69,61 m²):
  • 4 pomieszczenia o pow. od 6,57 m² do 33,22 m²
  • Korytarze (5,19 m² i 3,94 m²)
  • WC (3,1 m²)
III piętro (łączna pow. 113,9 m²):
  • 3 pomieszczenia o pow. od 12,93 m² do 47,98 m²
  • Korytarz (20,36 m²)
  • Łazienka (5,94 m²)
  • Dwie komórki (2,1 m² i 4,88 m²)
Większa ilość zdjęć bezpośrednio na stronie naszego biura.

Zapraszamy na prezentację!

Przy zakupie oferujemy pomoc w uzyskaniu finansowania – również z dodatkowymi korzyściami!
Szczegóły u naszego Doradcy Finansowego. Oferujemy także szeroki zakres usług związanych z rynkiem nieruchomości. Prezentowana oferta nie stanowi oferty handlowej w rozumieniu art. 66 §1 Kodeksu Cywilnego. Informacje zawarte w ogłoszeniu mają charakter informacyjny i mogą ulec zmianie.
 

Lokalizacja nieruchomości

Właściciel

Proszę wprowadzić poprawne imię i nazwisko
Proszę wprowadzić poprawny numer telefonu
Proszę wprowadzić poprawny adres e-mail
Proszę zaznaczyć wymagane zgody
Rozwiąż równanie:
28 5
Niepoprawny wynik